CMARK

ARKITEKT SAR / MSA

Main Menu

Skip to content
  • Portfolio
    • FSJ | Frihamnen Sjukhuset |
    • CCP | Centro Cultural Progreso |
    • CCI | Cucina Culinary Institute |
    • INA | Instituto Nuevo Amanecer |
    • SFE | Residencia San Fernando |
    • CM | Casa M |
    • 3N | Casa 3N |
    • SPS | SP Studio |
    • 5.10 | Torre 5.10 |
    • A04 | Mina 749 |
    • G47 | Gibraltargatan 47 |
    • S37 | Södra Vägen 37 |
    • +ONE | living & retail |
    • BRE| Breka Interior Design |
  • About
  • Publications
  • Contact

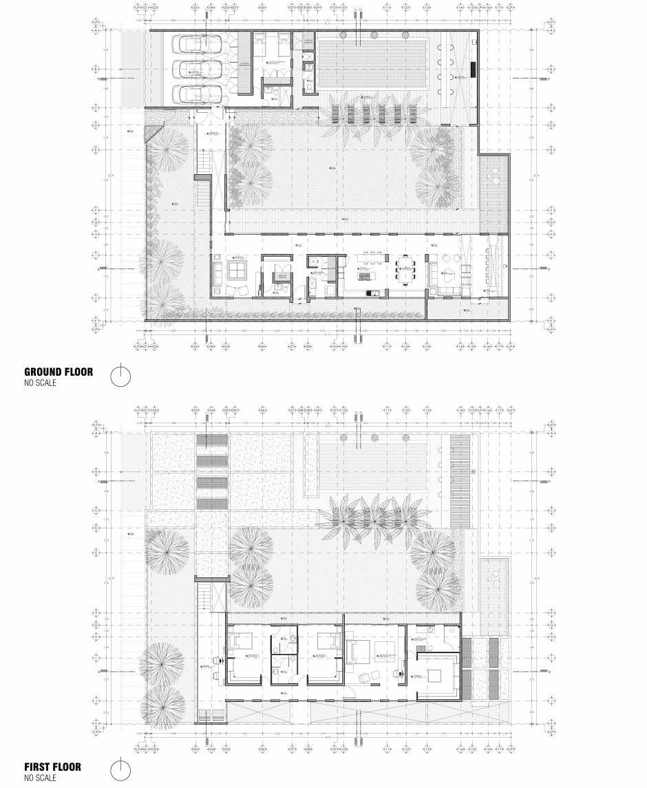
CM | Casa M |

CMA33cma34-e1502991906947.jpg

Bar
Acceso
Family Room
Alberca
Comedor-Noche
Sala-Noche
Jardín
Acceso

All Rights Reserved | SWEDEN 2020

Website Powered by WordPress.com.
Privacy & Cookies: This site uses cookies. By continuing to use this website, you agree to their use.
To find out more, including how to control cookies, see here: Cookie Policy
    • CMARK
    • Sign up
    • Log in
    • Copy shortlink
    • Report this content
    • Manage subscriptions
 

Loading Comments...